An Eco-community Family

Overview
Episode 107 – “It Takes a Community”
Pacifica is a co-housing community, and Tracy and Brad take us on a tour. It reflects their world-view and inspires how they intend to live their life. Today we review how we’ll create an eco-friendly nursery using materials that are safe in every respect. We build a pipe bookshelf, begin our update of the bath, and build a book stack lamp from scratch.
Episode 108 – “Bookish Baby”
Tracy and Brad continue their journey to parenthood by working with a local bookbinder to create a journal for their baby. At home, we are putting down eco-friendly carpet tile, building a book-themed signpost, and fitting out our nursery with other organically fashioned projects.
Projects in these Episodes

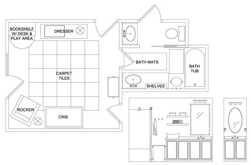
Nursery Plan

Nursery Elevations

Using green products in your nursery is good for baby and the world
On this episode you will learn to:
- Stain and Seal a Bookshelf
- Build a Pipe Bookshelf
- Create a Book Lamp
- Build Mason Jar Wall Containers
- Place New Carpeting
- Make a Keepsake Journal
- Paint a "Stained Glass" Window
- Make a Book Themed Signpost
- Built Nursery Toy Bin
- Install a Wall Rug Decoration
- And more!
Suppliers
- Wall Color - Benjamin Moore Calm 2111-70
- Bathroom Wall Color - Benjamin Moore Majestic Blue 2051-40. Painted by Sven Johnson of SA Johnson Decorative Art and Interiors
- Red Accent on Produce Shelf - Benjamin Moore Poppy 1315
- Crib - DaVinci Highland Convertible Crib
- Carpet Tiles - Flor
- Moroccan Rug and Rug Pillows - Greenfront Interiors
- Rocking Chair - Nurseryworks Sleepytime Rocker
- Accent Pillow - F. Schumacher & Co, available through Design Lines Ltd.
- Dresser - Vintage, from Gremlina Vintage
- Floor Lamp - Target
- Changing Pad Basket - Pottery Barn
- Changing Pad Cover - Aden & Anais
- Woven Shades - Wal-Mart
- Watercolor Art, Crib Sheet, Blocks, Shower Curtain - Target
- Round Rug, Oval Mirror, Train, Towels, Art - World Market
- Floor Mats - Bed, Bath, & Beyond



